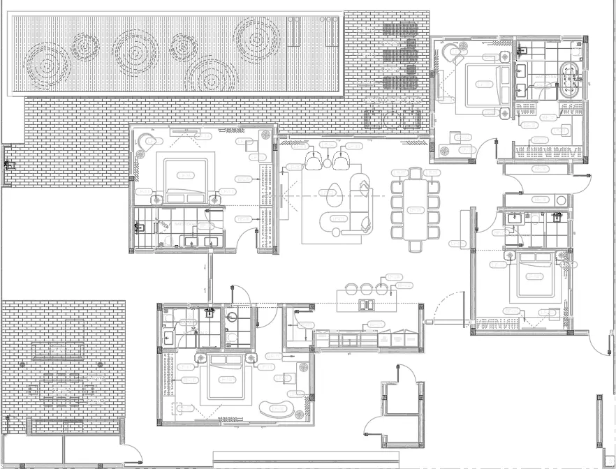
Phuket Villas and Community Hub Development

This project highlights a collaboration with a development company in Phuket, contributing to the development of several villa interiors, including custom furniture and bespoke built‑in elements. The work also involved supporting the creation of a separate community center designed to complement the residential complex. The presentation includes examples of construction details, illustrating the technical solutions and material strategies developed throughout the project.

Ce projet met en avant une collaboration avec une société de développement basée à Phuket, contribuant à l’aménagement intérieur de plusieurs villas, incluant du mobilier sur mesure et des éléments intégrés conçus spécifiquement pour chaque espace. Le travail a également consisté à accompagner la création d’un centre communautaire indépendant, pensé pour compléter l’ensemble résidentiel. La présentation inclut des exemples de détails constructifs, illustrant les solutions techniques et les stratégies matérielles développées tout au long du projet.

BIANCO-SATINATO